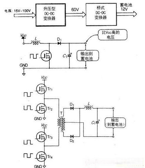
這是面向槳葉直徑達2m的風力發電機充電電路。風力發電機輸出電壓為15V一100V,對如此懸殊的輸入電壓范圍,采用了上圖的電路結構。在風力發電機輸出電壓低時,用斬波型升壓電路(中圖)把電壓升至60V,再經全橋DC-DC變換器(下圖)轉換為蓄電池電壓。當發電機電壓在60V以上時,升壓電路不工作,直接由全橋變換器轉換風力發電機。
下圖是全電路。利用反饋控制得到60V輸出(用VR1調整)。為防止輸出電壓異常升高,設置了過電壓保護,過壓值用VR2設定。后級為全橋DC-DC變換器,將60V變為12V輸出。控制lC仍用TIA94.而驅動功率MOSFET開關管,則選用大電流驅動lCIR2110.可以高耐壓、高速地驅動高位和低位開關管,不僅耐壓達500v.且可獲得10V—20V的柵極驅動電壓。

因為IR2110允許25V的輸入電壓,故將TLA94的輸出直接輸入。兩個IR2110分別輸入反相的信號,驅動四個功率開關管,構成全橋電路。輸出經變壓器由肖特基快恢復二極管整流,濾波后輸出直流電壓。
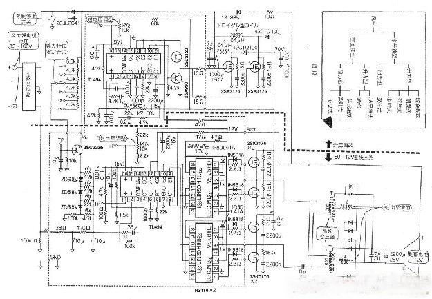
高頻變壓器T選用EI-50(寬50mm)鐵氧體磁芯,用φ0.7mm聚胺脂漆包線繞制,兩個變壓器并聯。濾波電感L用EI-40(寬40mm)鐵心,也用φ0.7mm聚胺脂漆包線8股并繞20匝。為避免磁飽和,磁芯橫截面間夾入0.2mm~0.3mm厚紙片作磁隙。用三次方特性產生電路作反饋,以及最佳負荷選擇開關等與圖5相似。整流二極管選用40A的肖特基快恢復二極管2個并聯。
本電路最大輸出時效率達80%—90%,若輸出500w,則有50W—100W功耗,這些都轉化為晶體管、變壓器、電感、二極管的熱量。為散熱,設置了自動感溫的排氣扇。本電路輸出30W—400W的效率達85%。

責任編輯: 中國能源網